La mia proposta prevede la vendita di un complesso commerciale polifunzionale , attualmente adibito a uffici tecnico/ professionali con annessi deposito e magazzino e locali accessori.
Distribuito su due livelli mediante una struttura interna a soppalco la parte dedicata agli uffici e la zona dedicata all’archivio, risulta molto flessibile da rielaborare, frazionata in più aree studio dal concept moderno e innovativo e tutte collegate tra loro unitamente a tre servizi igienici.
La mia proposta prevede la vendita di un complesso commerciale polifunzionale , attualmente adibito a uffici tecnico/ professionali con annessi deposito e magazzino e locali accessori.
Distribuito su due livelli mediante una struttura interna a soppalco la parte dedicata agli uffici e la zona dedicata all’archivio, risulta molto flessibile da rielaborare, frazionata in più aree studio dal concept moderno e innovativo e tutte collegate tra loro unitamente a tre servizi igienici.
E’ consentita da tutta la zona degli uffici l’accesso diretto al magazzino e al deposito con annessi spogliatoi, docce e servizi igienici.
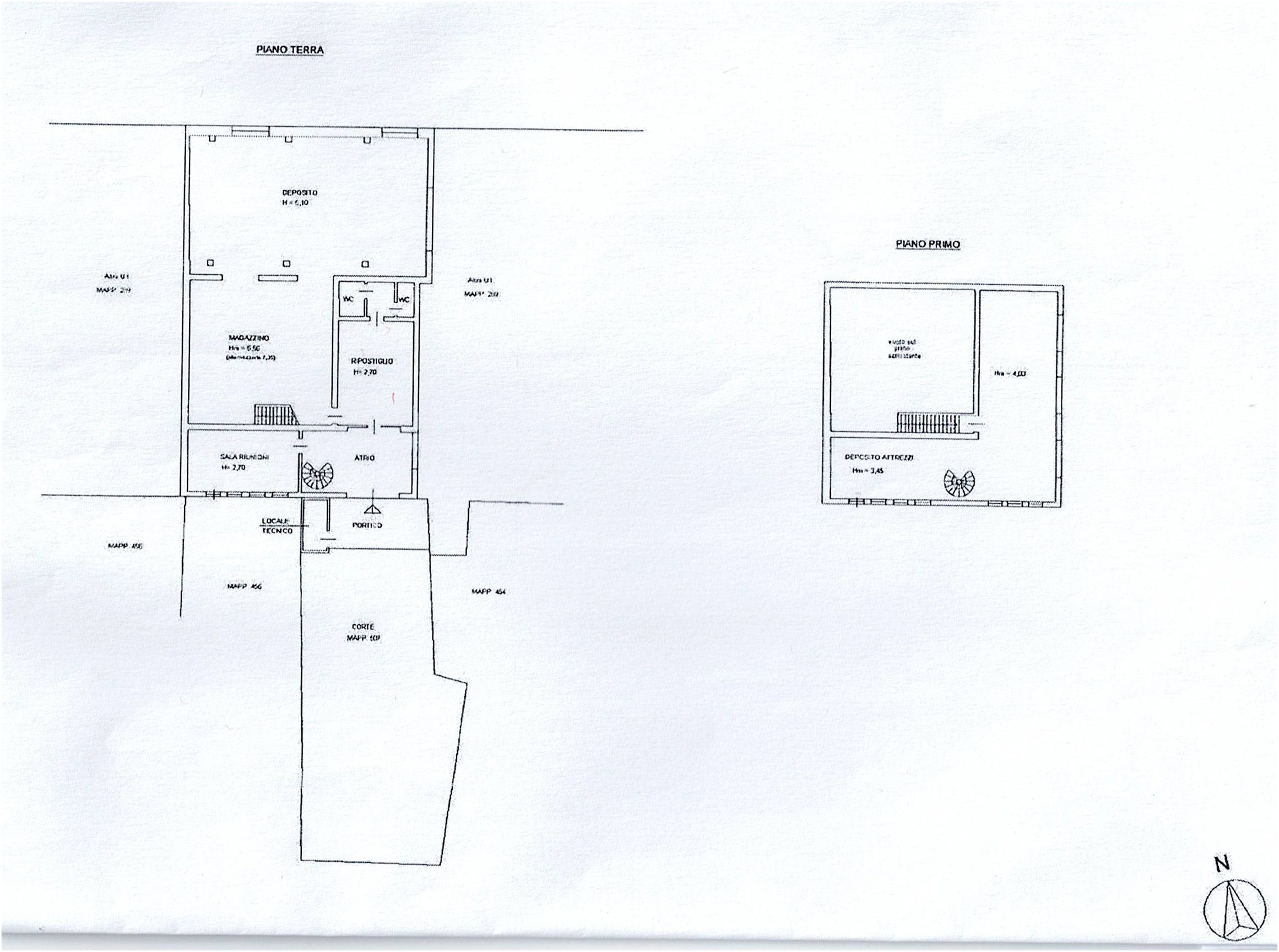
Completa la proprietà una grande area cortile/parcheggio di c.a. 1.255 mq.
La proprietà è attualmente locata e garantisce una rendita costante.
Caratteristiche principali:
– Anno di ristrutturazione 1990;
– Superfici ampie e versatili, ideali per diverse tipologie di attività con possibilità di frazionamento; gli spazi sono pensati per essere adattabili a diverse esigenze e per accogliere anche molteplici attività;
– Stato di manutenzione più che buono;
– Ambienti ariosi e funzionali dotati di aria condizionata;
– Dettagli architettonici di carattere, in chiave moderna e dal design innovativo;
– Struttura modulare e flessibile, perfetta per adattarsi a differenti esigenze professionali;
– Impianto di riscaldamento con due caldaie a gas;
– Impianto fotovoltaico: 20Kw, in funzione da 12 anni
resa economica: nell’anno 2024 l’impianto ha prodotto un reddito per cessione della corrente di euro 9.400;
– Impianto allarme – video sorveglianza;
– Impianto elettrico sottotraccia;
– Impianto di carburante per automezzi posto sul piazzale del cortile comune.
Posizione strategica, prevalentemente residenziale in fase di riqualificazione, ma anche di piccole attività artigianali e di commercio. A due passi dal centro e facilmente raggiungibile anche a piedi da ogni parte della città.
Una soluzione ideale per professionisti e aziende che vogliono uno spazio , in zona centrale tranquilla, utilizzabile fin da subito e in buone condizioni.
Sono ammessi i seguenti usi:
– Commercio all’ingrosso
– Pubblico esercizio
– Artigianato di servizio
– Artigianato di servizio agli automezzi
– Fiere, esposizioni
– Direzionale
– Attività produttive , artigianali, attività di studio e ricerca, come meglio indicato nel PGT comunale di Arona all’art. 17.
Superfici esistenti:
Uffici 415 mq. ( 230 mq. P.T. + 185 mq. soppalco)
Magazzino 316 mq.
Accessori: spogliatoio ( 20 mq.), tettoia ( 95 mq.), ripostiglio ( 9 mq.)
Parcheggio/cortile 1.255 mq.
I nostri immobili di prestigio sono unici nel loro genere e spesso hanno bisogno di una visita per capire al meglio se è adatto alle vostre esigenze. Scrivici una email o contattaci al +39 335257710 per saperne di più.